[Mã bản vẽ 89403]

Bản vẽ Nhà phố kết hợp căn hộ cho thuê 4 tầng + lửng + tum thang 4.5x19.4m (full hồ sơ thi công kiến trúc, kết cấu, điện nước)

  (1 Đánh giá)
  0       25    

Nhà phố kết hợp căn hộ cho thuê 4 tầng + lửng + tum thang, căn hộ lớn thiết kế đầy đủ công năng 4,5x19,4m. Có thể kết hợp vừa ở gia đình và cho thuê căn hộ.

Danh mục
Thể loại
Ngày đăng
27-9-2025
Loại file
File
File download
 NHÀ PHỐ+CĂN HỘ CHO THUÊ 4 TẦNG+LỬNG+TUM 4,5x19,4m.rar [3.01 MB]
CAM KẾT TỪ NGƯỜI BÁN
Bản vẽ giống 100% như hình ảnh.
Có đầy đủ phối cảnh, bản vẽ autocad kiến trúc, kết cấu, điện nước thi công
Phù hợp tham khảo và phát triển


Bản vẽ
30

Đánh giá (65)
5/5

Ngày tham gia
9/9/2025

Hồ sơ thiết kế nhà, bao gồm 4 phần:

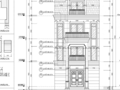
1. Ảnh phối cảnh 3D ngoại thất công trình;

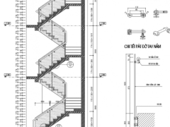
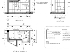
2. Phần Kiến trúc (Bản vẽ thiết kế chi tiết thi công);

3. Phần Kết cấu (Bản vẽ thiết kế chi tiết thi công);

4. Phần Điện nước - Điều hòa thông gió, chiếu sáng (Bản vẽ thiết kế chi tiết thi công).

 

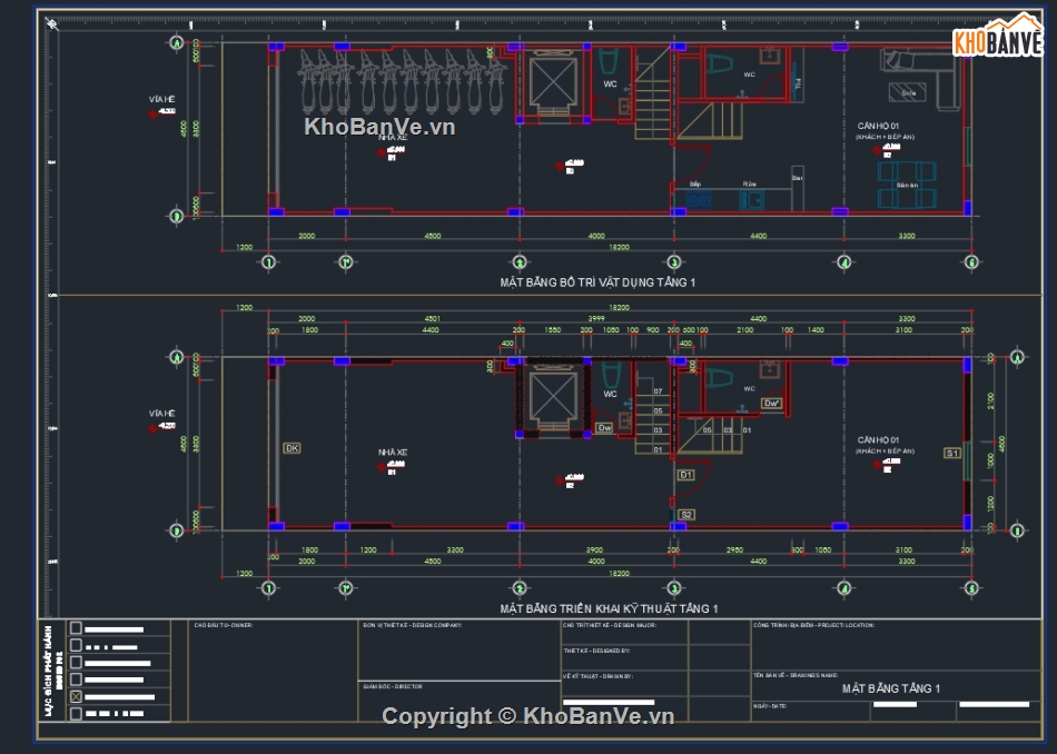
Quy mô nhà bao gồm 4 tầng + 1 lửng + 1 tum thang, căn hộ lớn thiết kế đầy đủ công năng

Có thể kết hợp căn hộ tầng 1 và tầng lửng để ở gia đình 

Tầng 1+ tầng lửng: Nhà để xe, không gian sinh hoạt chung, căn ở gia đình liên thông tầng 1 và tầng lửng 

Tầng 2, 3, 4: Mỗi tầng 2 căn hộ lớn

Tầng tum thang: Tum thang, sân thượng

 

HÌNH ẢNH DEMO


căn hộ cho thuê,Nhà phố,nhà phố 4 tầng,căn hộ cho thuê 4 tầng

căn hộ cho thuê,Nhà phố,nhà phố 4 tầng,căn hộ cho thuê 4 tầng

căn hộ cho thuê,Nhà phố,nhà phố 4 tầng,căn hộ cho thuê 4 tầng

căn hộ cho thuê,Nhà phố,nhà phố 4 tầng,căn hộ cho thuê 4 tầng

căn hộ cho thuê,Nhà phố,nhà phố 4 tầng,căn hộ cho thuê 4 tầng

căn hộ cho thuê,Nhà phố,nhà phố 4 tầng,căn hộ cho thuê 4 tầng

căn hộ cho thuê,Nhà phố,nhà phố 4 tầng,căn hộ cho thuê 4 tầng

căn hộ cho thuê,Nhà phố,nhà phố 4 tầng,căn hộ cho thuê 4 tầng

căn hộ cho thuê,Nhà phố,nhà phố 4 tầng,căn hộ cho thuê 4 tầng




Nguồn: Khobanve.vn

BÌNH LUẬN (0)


ĐÁNH GIÁ (1)

ĐIỂM TRUNG BÌNH

5
1 Đánh giá
Bản vẽ rất tốt (1)
Bản vẽ tốt (0)
Bản vẽ rất hay (0)
Bản vẽ hay (0)
Bình thường (0)
Thành viên
Nội dung đánh giá
16:31 - 27/9/2025
Bản vẽ rất tốt
Bản vẽ rất tốt và phù hợp để phát triển