[Mã bản vẽ 88351]

Nhà phố 4 tầng 5x25m (full hồ sơ thi công kiến trúc, kết cấu, điện nước)

  (1 Đánh giá)
  0       26    

Nhà phố 4 tầng thiết kế theo xu hướng đẹp hiện đại có đầy đủ phối cảnh, bản vẽ kiến trúc, kết cấu và điện nước thi công.

Danh mục
Thể loại
Ngày đăng
20-9-2025
Loại file
File
File download
 NHÀ PHỐ 4 TẦNG 5x25m.rar [4.2 MB]
CAM KẾT TỪ NGƯỜI BÁN
Bản vẽ giống 100% như hình ảnh.
Có đầy đủ phối cảnh, bản vẽ autocad kiến trúc, kết cấu, điện nước thi công
Phù hợp tham khảo và phát triển


Bản vẽ
30

Đánh giá (65)
5/5

Ngày tham gia
9/9/2025

Nhà phố 4 tầng thiết kế theo xu hướng đẹp hiện đại có đầy đủ phối cảnh, bản vẽ kiến trúc, kết cấu và điện nước thi công.

Có đầy đủ phối cảnh, bản vẽ  autocad kiến trúc, kết cấu, điện nước thi công

Phù hợp tham khảo và phát triển

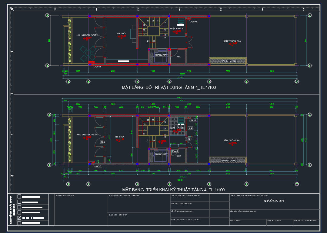
Tầng 1: Sân trước, phòng khám

Tầng 2: 2 phòng ngủ,1 phòng Sinh hoạt chung + tiếp khách, phòng bếp + ăn

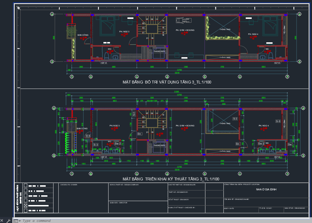
Tầng 3: 2 phòng ngủ, 1 phòng Gym

Tầng 4: phòng thờ, phòng giặt phơi, sân thượng

HÌNH ẢNH DEMO


Nhà phố,kiến trúc 4 tầng,kết cấu kiến trúc

Nhà phố,kiến trúc 4 tầng,kết cấu kiến trúc

Nhà phố,kiến trúc 4 tầng,kết cấu kiến trúc

Nhà phố,kiến trúc 4 tầng,kết cấu kiến trúc

Nhà phố,kiến trúc 4 tầng,kết cấu kiến trúc

Nhà phố,kiến trúc 4 tầng,kết cấu kiến trúc

Nhà phố,kiến trúc 4 tầng,kết cấu kiến trúc




Nguồn: Khobanve.vn

BÌNH LUẬN (0)


ĐÁNH GIÁ (1)

ĐIỂM TRUNG BÌNH

5
1 Đánh giá
Bản vẽ rất tốt (1)
Bản vẽ tốt (0)
Bản vẽ rất hay (0)
Bản vẽ hay (0)
Bình thường (0)
Thành viên
Nội dung đánh giá
21:34 - 20/9/2025
Bản vẽ rất tốt
Bản vẽ rất tốt và phù hợp để phát triển